
LOCAL COMMERCIAL 80 M² CENTRE VILLE - MOISSY CRAMAYEL
Local commercial de 79,50 m² environ, en parfait état. Situé...





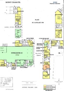
Local Commercial à la location, d’environ 75 m² en rdc, avenue Philippe Bur face à la place du marché, en bon état.
Facilité d’accès grâce aux différents parkings gratuits.
Cette ancienne agence de communication est livrée en l’état.
Moissy Cramayel, en pleine rénovation urbaine, est une ville en devenir dont le potentiel ne cesse de croître.
Bien placĂ© entre l’agence CIC et Le Bureau de poste.
Facilité d’accès grâce aux différents parkings gratuits

Livrée en l’état.
Disponibilité : juin 2023
Bail commercial: 3/6/10 ans.
Loyer annuel de 14 250€ HT HC, révisable annuellement sur l’indice ILC. Le loyer est payable trimestriellement et d’avance.
Charges annuelles de 2717 € TTC (taxe foncière estimée incluse, susceptible de variée selon l’activité)
Réservation du local: Signature du bail avec versement d’un dépôt de garantie représentant 3 mois de loyer HT.
Vous souhaitez connaitre tous les détails de cette offre de location ?
Laissez-nous un message, nous reviendrons vers vous dans les plus brefs délais
Je souhaite vous appeler
01 47 20 42 00

Local commercial de 79,50 m² environ, en parfait état. Situé...

Local commercial idéalement situé au centre de Moissy sur la...