
Local Montfermeil
Le local commercial est situé au sein de La ZAC...




Le local commercial est situé au sein de La ZAC « cœur de Ville » représentatif du centre-ville de Montfermeil (27 000 habitants) à côté de la Mairie, à 15km de Paris, Roissy et Marne la Vallée et fait partie d’une Opération de restructuration de L’ANRU depuis 2009. Celle-ci comprend la construction de logements neufs, de commerces et d’un centre multi-accueil.
De part son positionnement stratégique, le long de la rue Henri Barbusse (rue commerçante du centre-ville de Montfermeil), le local bénéficie d’un flux important de passant et de la proximité de l’extension de la ligne de tramway T4 qui raccordera la Ville de Montfermeil entre autres à la future ligne 16 du métro.
Le plus :
– Local idĂ©alement situĂ© au cĹ“ur du centre-ville.
– Rue passante ce qui confère au local une bonne visibilitĂ©
– ProximitĂ© du tram
Rue Henri Barbusse
93370 MONTFERMEIL
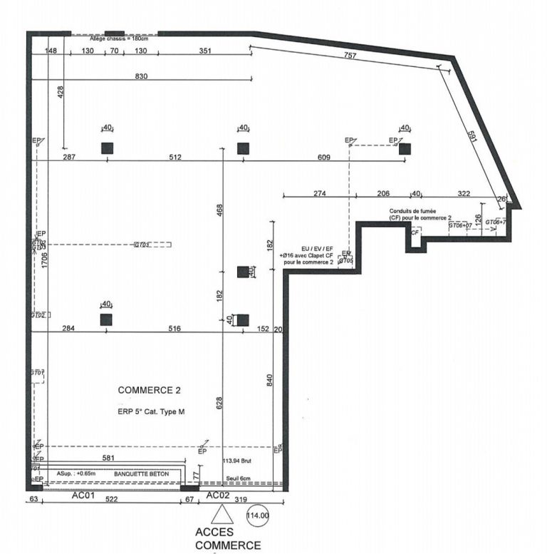
A Noter : Le local est livré brut de béton avec fluides (électricité, eau) en attente.
Tous les aménagements de façades et de travaux d’intérieurs seront à la charge du preneur. Les vitrines étant réalisées selon un cahier des charges défini.
Bail Commercial : 3/6/10 ans.
Loyer annuel Fixe : 34 192 € HT HC, révisable annuellement sur l’indice ILC. Le loyer est payable trimestriellement et d’avance.
Charges annuelles HT : A estimer + Taxe foncière (déterminé en fonction de la surface de vente exploitée après aménagement)
Après le date de réception du local : 2 mois de loyer gratuits.
Réservation du local : Signature du bail avec versement d’un dépôt de garantie représentant 3 mois de loyer HT.
Vous souhaitez connaitre tous les détails de cette offre de location ?
Laissez-nous un message, nous reviendrons vers vous dans les plus brefs délais
Je souhaite vous appeler
01 47 20 42 00

Le local commercial est situé au sein de La ZAC...